Terrain d’Exception à Meise – Quartier Bouchout
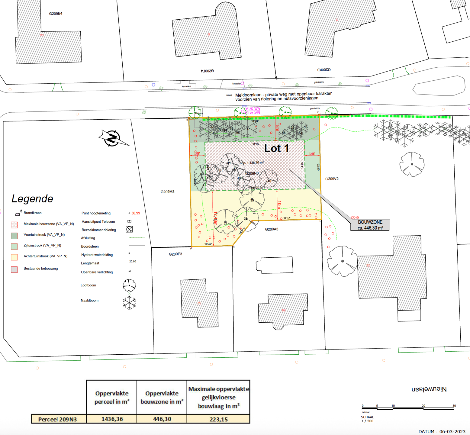
Dans l’un des quartiers les plus prisés et exclusifs de Belgique, au cœur verdoyant du quartier Bouchout à Meise, AG PROPERTIES a l’immense plaisir de vous présenter ce prestigieux terrain à bâtir de 14a 36ca, offrant une opportunité unique de concrétiser votre résidence d’exception.
Un emplacement d’élite :
Implanté dans une voie sans issue, il offre un environnement confidentiel, exclusif, et une tranquillité absolue, le tout, à quelques pas du Jardin Botanique National de Belgique, et à proximité immédiate des axes vers Bruxelles, Wemmel et Strombeek-Bever.
Potentiel architectural rare :
– Largeur : +- 40 mètres
– Profondeur : +- 35 mètres
– Zone constructible au sol : +- 220 m²
– Configuration idéale pour ériger une villa contemporaine, de style classique ou moderne, avec piscine, poolhouse, jardin paysager, et tout autre aménagement de prestige.
Atouts exclusifs :
– Quartier ultra-résidentiel, très prisé et fort recherché
– Terrain libre de constructeur
– Emprise au sol généreuse
– Proximité des meilleures écoles internationales de renom, golfs, parcs et services de standing
Ce terrain s’adresse aux familles exigeantes, investisseurs visionnaires ou architectes souhaitant créer une demeure d’exception dans un cadre naturel, exclusif et sécurisé.
Prix de vente : 609.000€ (sous réserve d’acceptation du vendeur).
Contactez-nous en toute discrétion – 02/880.10.10 ou info@agproperties.be
249.000 €
Voir les détails145.000 €
Voir les détails279.000 €
Voir les détails© AG Properties, All Rights Reserved 2025
COUP DE COEUR – MAGNIFIQUE APPARTEMENT 2 CHAMBRES
Posséder une maison est la clé de voûte de la richesse... tant sur le plan financier que sur celui de la sécurité émotionnelle.
Suze Orman